
Welcome to The Shop
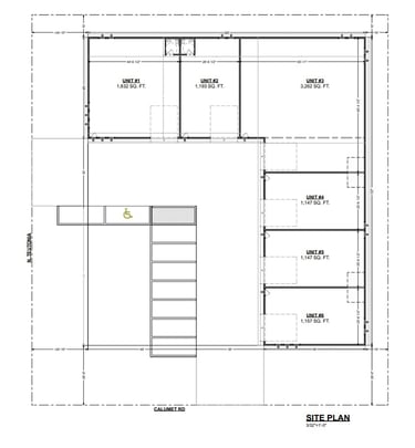
Located at 7600 N Teutonia Ave, in Brown Deer, WI, The Shop consists of six versatile units designed specifically for contractors. Each space comes with a garage door, entry, and half bath.


Coming Soon!
We anticipate full completion summer of 2026. We are now accepting applications. Secure your space now.
Our Spaces
Six customizable units designed for contractors’ unique needs.


Flexible Layouts
Design your unit to fit your workflow perfectly.
Convenient Location
Situated at 7600 N Teutonia Ave, Brown Deer.
Essential Amenities
Each unit includes a half bathroom, entry door, and large garage door.
Get in touch
Leasing for The Shop is being conducted exclusively by McKenna Real Estate. If you have any questions please complete the following form or reach out to the commercial real estate broker, Paul McKenna
Phone
414-306-2790
Paul@McKennaBroker.com




